Amroth Project
A diary of the regeneration of Ebenezer church in Amroth.
Sunday, 5 February 2012
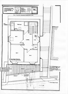
PROPOSED DRAWINGS
These are the proposed drawings - We are currently working on the ground floor plan
No comments:
Post a Comment
Newer Post
Older Post
Home
Subscribe to:
Post Comments (Atom)
No comments:
Post a Comment